CIVITAS_DALLAS, TEXAS

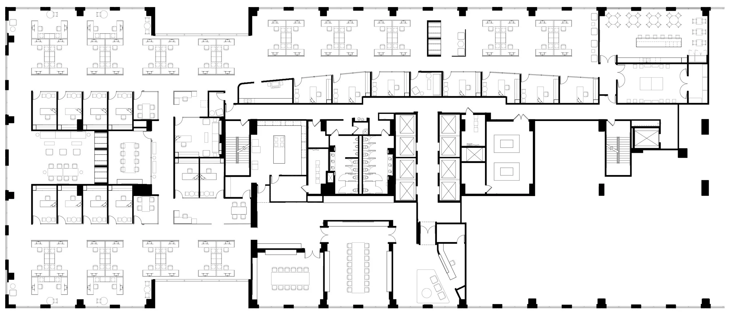
The 22,000 square feet headquarters for Civitas Capital Group in Dallas’ Arts District mixes modern design with functional creativity. Organized around diverse work environments, the space features open and private offices, collaborative zones, and distinct design elements such as red portals throughout representing prosperity and a topographic mural in the lobby, all designed to foster teamwork, individuality, and a global outlook.

Previous
Previous

SHOYO

Next
Next

HOUNDSTOOTH MLK