BROOKLYN_NEW YORK

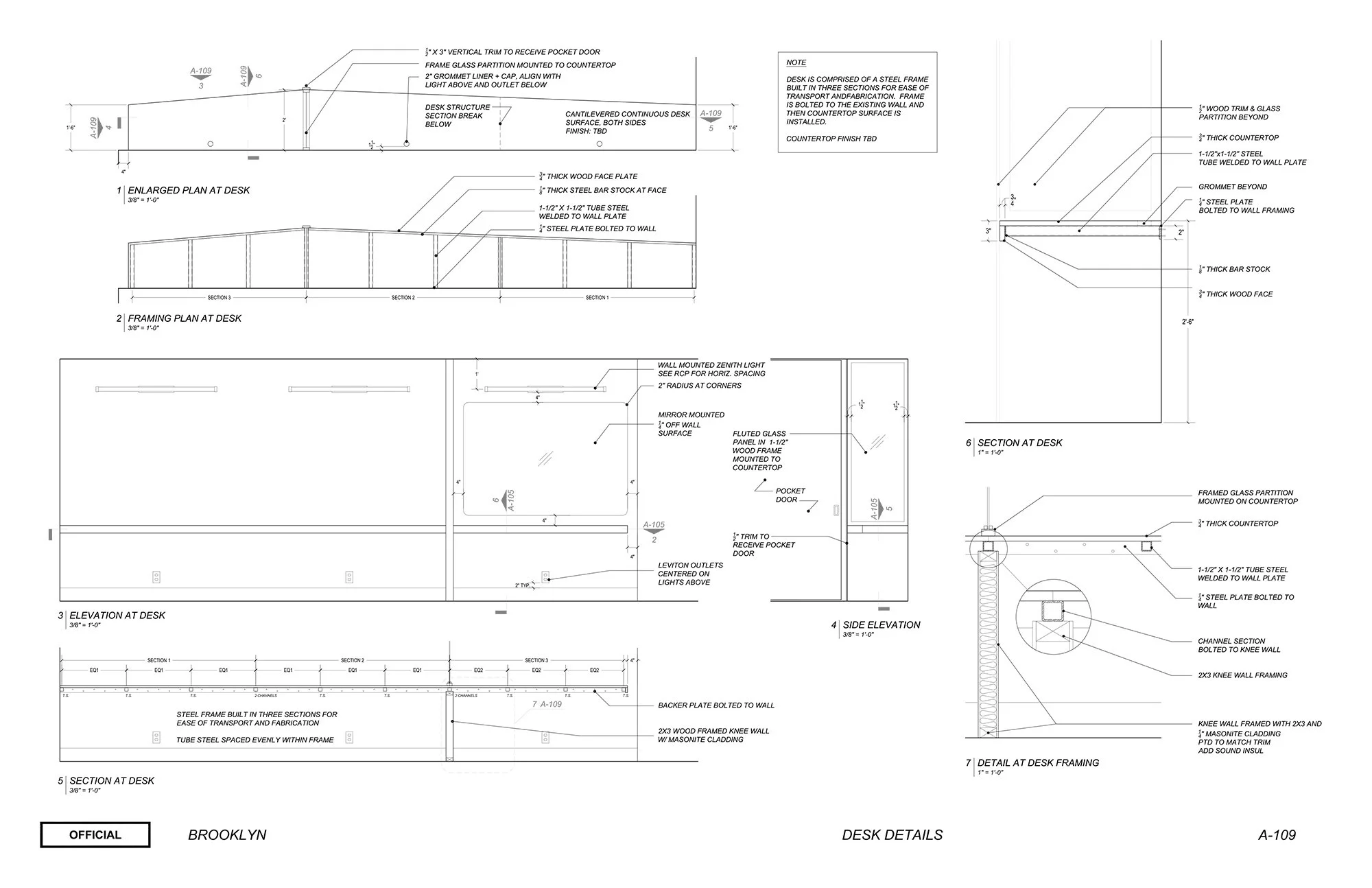
We renovated an apartment for a writer, focusing on maximizing space while maintaining openness and brightness. Central to the design is Superdesk, a multifunctional piece spanning from the bedroom to the living room, unifying the space as a writer’s desk and vanity, complemented by a modernized kitchen and bathroom.

Previous
Previous

ICE HOUSE

Next
Next

BEVERLY